千葉
満室稼働中 2駅2路線利用可 「新松戸」駅へは徒歩13分 土地83坪 駅前イオン有
- 備考
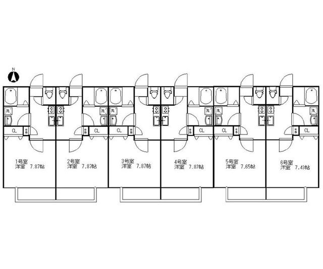
- 仲介手数料30%割引 1K12戸 バストイレ別 室内洗濯機置場 独立洗面台 浴室乾燥機 TVモニターホン 駐輪場 西側道路面 満室
| 種別 | 売りアパート |
|---|---|
| 所在地 | 松戸市大谷口 |
| 駅から | 徒歩10分 |
| 土地面積 | 277.21m2 |
| 床面積 | 298.68m2 |
| 築年月 | 2019年8月(築6年) |
| 構造 | 木造 |
| 用途地域 | 第一種中高層住居専用地域 |
| 建ぺい率 | 60% |
| 容積率 | 200% |
| 年収入 | 898.8万円 |
| 総戸数 | 12戸 |
| 取引形態 | 媒介 |
| おすすめ ポイント |
JR常磐線「北小金」駅から徒歩10分の木造アパートです。 当路線は千代田線との直通運転を行っており、都心方面へのアクセス良好です。 JR武蔵野線「新松戸」駅からは徒歩13分で利用可能。 土地面積は83坪。 駅前にはイオンがあり、外出帰りの買い物に便利です。 ご興味のある方は、お気軽に お問合せ下さい!(販売図面を10秒後に自動返信) |






















