東京23区内
都営大江戸線「勝どき」駅徒歩3分 2025年防水・塗装工事実施済み 駅前商店充実 清澄通り沿い 角地
| 種別 | 売りビル |
|---|---|
| 所在地 | 中央区勝どき |
| 駅から | 徒歩3分 |
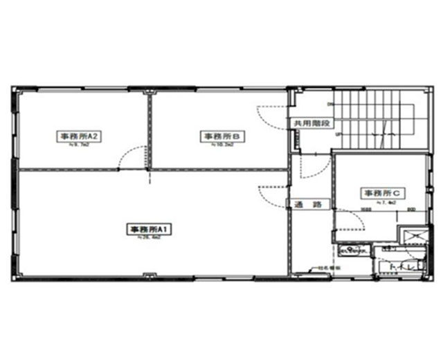
| 土地面積 | 110.43m2 |
| 床面積 | 246.7m2 |
| 築年月 | 1976年10月(築49年) |
| 構造 | 鉄骨 |
| 用途地域 | 商業地域 |
| 建ぺい率 | 80% |
| 容積率 | 600% |
| 年収入 | 2,169.6万円 |
| 総戸数 | 2戸 |
| 取引形態 | 媒介 |
| おすすめ ポイント |
都営大江戸線「勝どき」駅まで徒歩3分のビルです。 新宿・六本木方面からのアクセス良好な立地。 駅近につき店舗需要も見込めます。 清澄通りに面した角地。 周辺はオフィスビルやマンション、飲食店等が建ち並びます。 ご興味のある方は、お気軽に お問合せ下さい!(販売図面を10秒後に自動返信) |













