神奈川
満室稼働中 「橋本」駅からバス便有 県道508号沿いの公道角地 土地69坪 コンビニ徒歩2分
- 備考
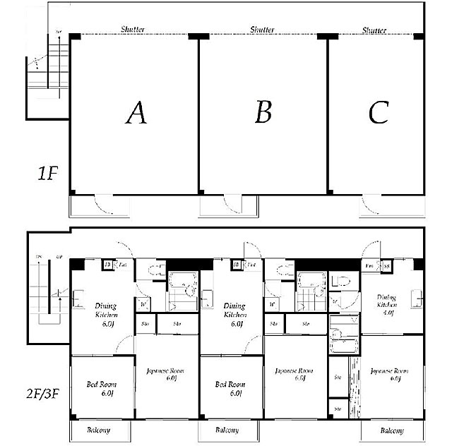
- 仲介手数料10%割引 鉄骨造3階建 店舗3戸 1DK2戸 2DK4戸 バストイレ別 室内洗濯機置場 駐車場 北東側・北西側公道面 満室
| 種別 | 一棟マンション |
|---|---|
| 所在地 | 相模原市緑区下九沢 |
| 駅から | バス10分停歩2分 |
| 土地面積 | 231.4m2 |
| 床面積 | 306.39m2 |
| 築年月 | 1987年3月(築38年) |
| 構造 | 鉄骨 |
| 用途地域 | 第一種中高層住居専用地域 |
| 建ぺい率 | 60% |
| 容積率 | 150% |
| 年収入 | 622.8万円 |
| 総戸数 | 9戸 |
| 取引形態 | 媒介 |
| おすすめ ポイント |
JR横浜線「橋本」駅が最寄りのマンション。 駅から距離がありますが、バス便の利用ができ停歩2分。 物件は公道角地に位置し、開放感のある立地。 土地面積は69坪あります。 コンビニは徒歩2分で利用ができます。 ご興味のある方は、お気軽に お問合せ下さい!(販売図面を10秒後に自動返信) |






















