東京23区内
2023年築 準急停車駅 駅前イトーヨーカドーあり 土地63坪 北三谷通り沿い 劣化等級3級
- 備考
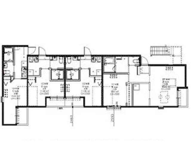
- 仲介手数料30%割引 木造3階建 1K13戸 1LDK1戸 バストイレ別 独立洗面台 オートロック 宅配ボックス 駐輪場 東側12m公道面 満室 劣化等級3級
| 種別 | 売りアパート |
|---|---|
| 所在地 | 足立区東綾瀬 |
| 駅から | 徒歩13分 |
| 土地面積 | 211.51m2 |
| 床面積 | 299.94m2 |
| 築年月 | 2023年4月(築3年) |
| 構造 | 木造 |
| 用途地域 | 第一種住居地域 |
| 建ぺい率 | 60% |
| 容積率 | 300% |
| 年収入 | 1,198.8万円 |
| 総戸数 | 14戸 |
| 取引形態 | 媒介 |
| おすすめ ポイント |
東京メトロ千代田線「綾瀬」駅から徒歩13分の築浅アパートです。 人気の高い「北千住」駅へはたったの1駅、日本屈指のオフィス街・金融街である「大手町」駅へは8駅20分でダイレクトアクセスが可能。 「北千住」駅は複数の大学があり、社会人のみならず学生の需要も期待できます。 物件からコンビニまで徒歩4分、スーパーは徒歩6分で利用可能。 駅周辺にはイトーヨーカドーをはじめ、各種商店や飲食店が多数あります。 設備面では女性に人気のオートロックや独立洗面台、外出が多い方に便利な宅配ボックスも装備されています。 幅員12mの北三谷通りに面し、土地は63坪あります。 劣化対策等級は3級を取得しており、長期間の融資が期待できます。 ご興味のある方は、お気軽に お問合せ下さい!(販売図面を10秒後に自動返信) |



















