千葉
満室稼働中 3駅3路線利用可能 土地89坪 駅前商店・飲食店充実 スーパー徒歩5分
- 備考
- 仲介手数料30%割引 RC造4階建 店舗4戸 1LDK11戸 バストイレ別 室内洗濯機置場 駐輪場 北西側道路面 満室
| 種別 | 一棟マンション |
|---|---|
| 所在地 | 市川市大和田 |
| 駅から | 徒歩17分 |
| 土地面積 | 296.93m2 |
| 床面積 | 578.94m2 |
| 築年月 | 1988年3月(築38年) |
| 構造 | RC |
| 用途地域 | 第一種中高層住居専用地域 |
| 建ぺい率 | 60% |
| 容積率 | 200% |
| 年収入 | 1,382.5万円 |
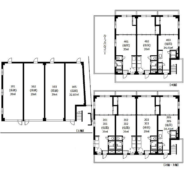
| 総戸数 | 15戸 |
| 取引形態 | 媒介 |
| おすすめ ポイント |
総武線「本八幡」駅から徒歩圏内のマンションです。 「菅野」駅、「市川」駅からも徒歩圏内で利用可能。 土地面積は89坪。 住居部分は全室1LDKタイプ、単身者の方はもちろんカップルやご夫婦にも人気な間取りです。 駅周辺は商店・飲食店多数。 物件からスーパーまでは徒歩5分で利用ができます。 ご興味のある方は、お気軽に お問合せ下さい!(販売図面を10秒後に自動返信) |



















